-

凭领先的技术和丰富的行业经验,从客户的需求出发,基于模块化设计的理念,研发生产CXT系列电动葫芦桥式起重机。它采用了先进的箱型梁设计,配套低净空钢丝绳电动葫芦。结构紧凑,运行平稳,定位精确,应用了变频控制、制动能量反馈及安全监控系统等诸多新技术,能够为您提供更好的物流解决方案,保证设备运行的可靠性和安全性。
结构紧凑,自重轻,轮压小,充分利用空间,综合性价比高
领先的技术保证了产品的极限尺寸,在保证高效性能前提下结构紧凑,同样的厂房和工作区域内,CXT系列电动葫芦桥式起重机能够覆盖更大的作业范围,增大厂房内部面积的利用率,减小盲区。如果在厂房设计阶段就依据产品系列参数进行设计,可以大大降低起重设备对厂房高度和承载力的要求,为客户节省投资、增效降本,减少厂房投资。
精选优质部件,安全可靠,经久耐用
优质的高品质部件是卓越品质的基础,从电动葫芦到减速机,从车轮到电缆,从安全可靠的电气元器件到精益求精的结构件,我们认真对待每一个部件,因为只有各部件拥有好的性能和质量才能确保整机的性能和品质。
精确定位,运行高效,提升物流效率
高品质的驱动单元确保运行的安全平稳和高效,紧凑的结构设计确保吊钩的偏移尺寸,提供起升双速(变频可选)、小车变频大车变频可选的标准配置,确保了起重机的高效运行、车间物流效率的提升,确保客户的各项工作计划如期执行。
安全可靠,运行监控,便于维修
选配智能监控系统,有多种监控、保护功能,确保起重机运行安全和可靠,其运行监控单元可以对电动葫芦运行情况、电机运行状态和安全工作周期等进行详细的记录,并提前警告。
模块化设计,维护成本低,完善的零配件服务
模块化设计的理念一直贯穿于整个产品的设计,保证了部件的标准性和互换性,大大降低了产品的维护成本。专业的服务队伍确保为客户及时提供售后服务,解决客户购买设备之后的后顾之忧。
低净空钢丝绳电动葫芦
结构紧凑,自重轻,轮压小,充分利用空间,综合性价比高
精选优质部件,安全可靠,经久耐用
精确定位,运行高效,提升物流效率
安全可靠,运行监控,便于维修,满足高频率起升的需求
电控箱
设计合理,检修方便,降低运行费用
专业优质电气元器件,安全可靠
多种安全保护装置,确保设备安全
防护等级IP55
标识明确,便于故障排除
大车行走驱动单元
高性能电机、减速箱、制动器三合一
结构紧凑,性能优良能耗小,噪音低,环保设计可选变频控制,运行平稳,冲击力小,满足多种速度要求
端梁
端梁由抗扭曲箱形结构且配备的全套减速电机和行走轮,适应各种起重设备运行要求,同时不会损伤轨道。
根据工况需求定制完美的运行驱动方案。运行平稳,安全可靠,并具有高度的灵活性。
悬挂电缆系统
悬挂电缆系统是起重机电力供应的必须部件
电缆选用定制YFFB型丁腈聚氯乙烯绝缘及护套扁平软电缆
C型轨、轨道支撑架和轨道接头都通过镀锌或镀塑保护内部不被锈蚀
车轮
DRS、EC系列车轮材质选用高强度球墨铸铁、42CrMo等材料
模块化设计,结构紧凑,标准化程度高,配套且易于装配
DIN标准内花键链接,自动定位,拆装方便
变频控制系统
精确的负载定位
减少负载摇摆调速范围广
可调加速、减速斜率
使用安全简便
遥控控制系统
遥控系统给操作者提供了一种安全、快捷的操作和控制手,从而能够进一步提升生产力,增强操作者的安全。
起重机的无线电控制分为手持按钮式和操纵摇杆式,为在苛刻杂的环境下使用标准型起升设备,提供了控制解决方案。
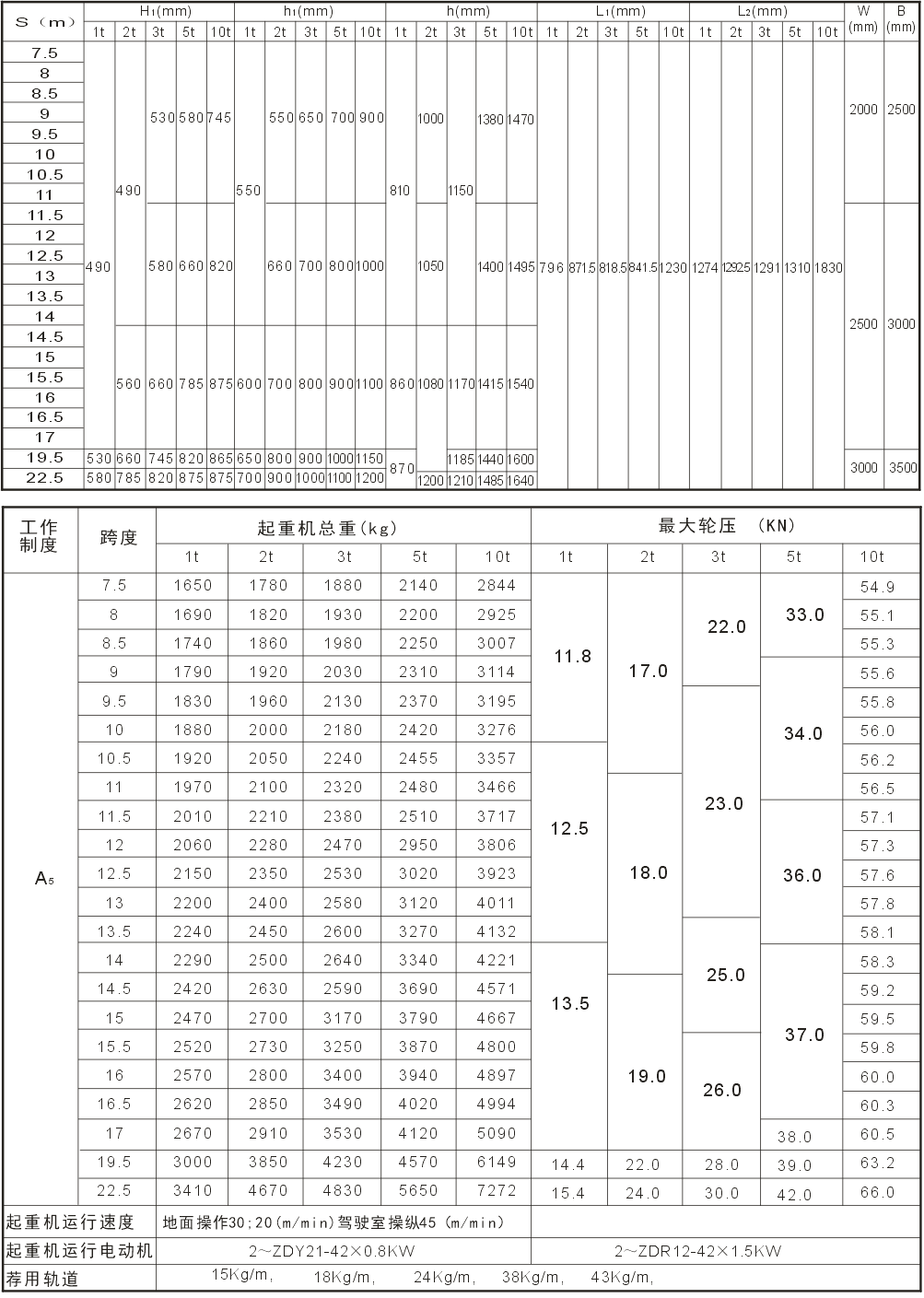
起重量(t) 跨度(m) 工作级别 起升速度(m/min) 小车运行速度(m/min) 大车运行速度(m/min) 轮压(KN) 基本尺寸(mm) 最大 最小 A B C D LK L 3 10.5 A5 5/0.8 5-20 5-20 19 5 655 450 500 303 1700 2160 13.5 20.3 6.2 855 550 203 1700 2160 16.5 22 7.2 955 650 203 2200 2660 19.5 24.8 9.8 1005 700 203 2200 2660 22.5 26.5 11.2 1055 750 203 3200 3660 25.5 29.4 14 1209 850 149 3200 3660 28.5 32 16.4 1209 850 149 3700 4160 5 10.5 A5 5/0.8 5-20 5-20 29.1 6.7 807 500 590 290 1700 2160 13.5 30.7 7.4 907 600 290 1700 2160 16.5 33.5 9.5 963 650 285 2200 2660 19.5 35.7 11.3 1063 750 285 2700 3160 22.5 38.5 13.8 1213 850 235 3200 3660 25.5 40.9 16 1313 950 255 3700 4160 28.5 44.3 19.1 1313 950 255 3800 4260 10 10.5 A5 5/0.8 5-20 5-20 55.2 10.1 919 600 740 460 1700 2160 13.5 58.4 12 1078 700 370 2200 2660 16.5 61.5 13.8 1223 850 375 2200 2660 19.5 64.3 15.7 1325 950 375 2700 3160 22.5 67.4 1888 1475 1100 276 3200 3660 25.5 72.7 22.9 1574 1100 276 3600 4060 28.5 77.6 27.4 1574 1100 276 3800 4260
-

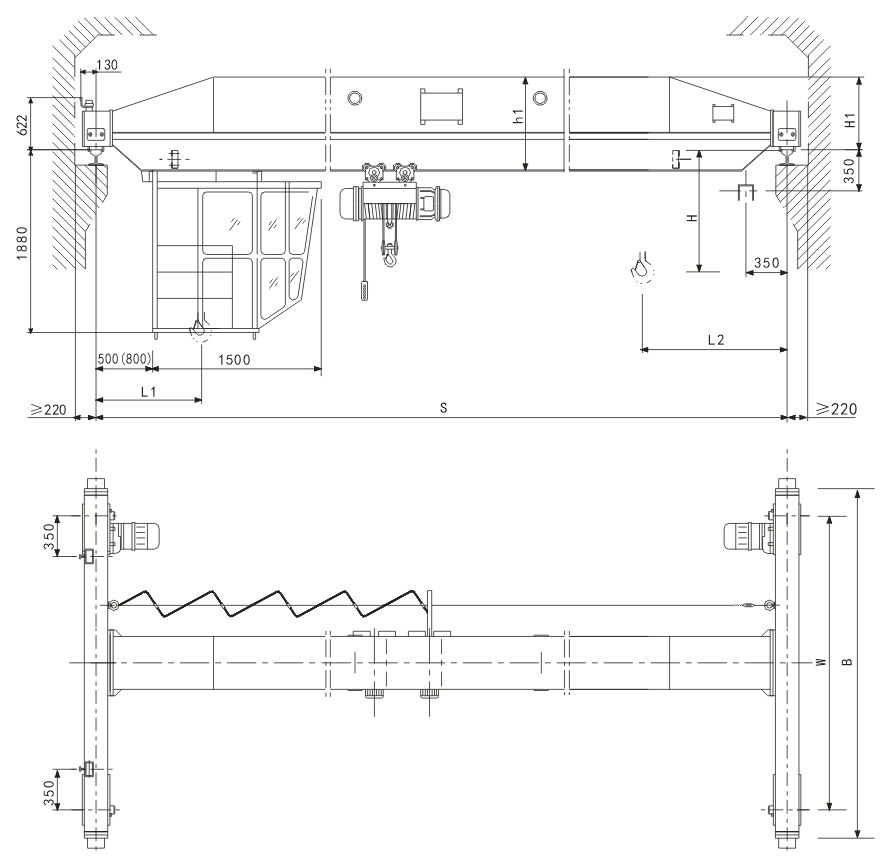
LDA型电动单梁起重机是在“LD”的基础上进行改进设计的,较“LD型”具有 结构合理,整机刚性强的特点。整机与CD1(单速)、MD1(双速)型电动葫芦配套 使用,是一种较小型的起重机械。其起重量为1t~10t。跨度为7.5~22.5m,工作 制度为A3~A5,工作环境温度为-25℃~40℃。
本产品适用于机械制造、装配、仓库等不同场合进行一般吊装作业。不适用 于易燃、易爆、腐蚀性介质量环境中使用。
本产品设有地面和操纵室两种操纵形式。操纵室又分为开式、闭式两种,可据客户要求分为左或右面安装两种形式,入门方向有侧面及端面两种,以满足客户在各种不同需要的情况下进行选择。
-
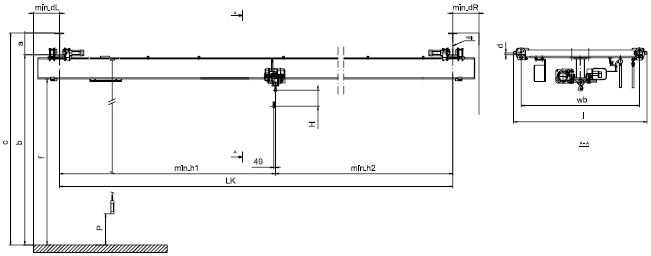
电动单梁悬挂起重机由钢板与工字钢组焊成的主梁、端梁、电动葫芦及电动跑车组成,悬挂在厂房上部的工字梁轨道上,悬臂长度0.5~1m,电动葫芦沿主梁工字钢下翼缘运行,完成物品的吊运工作,具有结构轻巧、安装维护方便等特点,广泛应用于生产车间、仓库及货场等场所。工作级别为A3-A5。
跨度(LK) m 6 7.5 9.5 11.5 13.5 15.5 18 整机总重 t 1.83 2.02 2.31 2.67 3.25 3.72 4.32 小车自重 t 0.32 0.32 0.32 0.32 0.32 0.32 0.32 最大轮压 kN 29.9 30.6 31.6 32.7 34.4 35.7 37.4 最小轮压 kN 4.1 4.3 4.8 5.5 6.8 7.9 9.2 推荐轨道 I36a I36a I36a I36a I36a I36a I36a 起升速度 m/min 5/0.8 5/0.8 5/0.8 5/0.8 5/0.8 5/0.8 5/0.8 小车速度 m/min 0 - 20 0 - 20 0 - 20 0 - 20 0 - 20 0 - 20 0 - 20 大车速度 m/min 0 - 32 0 - 32 0 - 32 0 - 32 0 - 32 0 - 32 0 - 32 起升电机 kW 4.5 4.5 4.5 4.5 4.5 4.5 4.5 小车电机 kW 0.45 0.45 0.45 0.45 0.45 0.45 0.45 大车电机 kW 0.6 0.6 0.6 0.6 0.9 0.9 0.9 整机功率 kW 5.55 5.55 5.55 5.55 5.85 5.85 5.85 主要尺寸 轨底到厂房顶 a 286 286 286 286 286 286 286 轨底高度 b 6910 6910 6912 6992 6996 7110 7116 车间顶高度 c 7196 7196 7198 7278 7282 7396 7402 缓冲块高度 d 43 43 43 43 43 43 43 起升高度 H 6000 6000 6000 6000 6000 6000 6000 吊钩左极限 h1 180 180 180 180 180 180 180 吊钩右极限 h2 170 170 170 170 170 170 170 右墙侧距离 dR 452 452 452 452 452 452 452 左墙侧距离 dL 452 452 452 452 452 452 452 梁底高度 f 6398 6398 6398 6398 6393 6396 6396 大车宽度 l 2546 2546 2546 2546 2546 2546 2546 大车基距 wb 2200 2200 2200 2200 2200 2200 2200
产品介绍






